アメリカ発アウトドアブランド大型ショップ〈環境図編〉 公開日:2021年5月17日 ファミリー002 今回は、アメリカのアウトドアブランドショップのご紹介です。 日本上陸してから、もう25年以上にはなるでしょうかね。 当時は凄く人気がありましたが、私思うに、ちょっと縫製が悪いような気がしました。 設計をした当時は、メンズ […] 続きを読む
海外でも高評価な日本のレディースショップ図面事例〈什器図編〉 更新日:2021年5月14日 公開日:2021年5月13日 レディース(キャリア)017 海外でも高評価な日本のレディースショップ図面事例、環境図編の次は、什器図編をご紹介していきます。環境編は、下記からご覧になれます。 機能違いのテーブルを組み合わせて見せる什器図事例 それでは、各什器を説明していきますが、 […] 続きを読む
海外でも高評価な日本のレディースショップ図面事例〈環境図編〉 公開日:2021年5月7日 レディース(キャリア)017 今回から新しく、レディースショップの図面事例をご紹介していきます。海外のファッション最先端の街でも高評価を受けている、日本発のブランドショップです。 参考になるアイディアが詰まったショップ事例、環境図編からスタートです。 […] 続きを読む
好立地なエスカサイドのメンズカジュアルショップ〈造作・什器図編〉 公開日:2021年4月15日 メンズ(カジュアル)011 メンズカジュアルショップ、造作・什器図編をお伝えします。 環境図の図面事例は、こちらをごらんください。⇒ 好立地なエスカサイドのメンズカジュアルショップ〈環境図編〉 機能パーツを固定式にしたディスプレイパネル什器 〈造作 […] 続きを読む
好立地なエスカサイドのメンズカジュアルショップ〈環境図編〉 公開日:2021年4月12日 メンズ(カジュアル)011 今回から新しく、メンズカジュアルショップの事例をお伝えします。このショップは、若い世代に人気があるファッションピル内の店舗です。 好条件な立地に恵まれ、それを活かしたプランがなされている勉強になる事例です。 流動人口の多 […] 続きを読む
いびつな建築駆体を陳列スペースにしたトラベルショップ〈Part_2〉 公開日:2021年4月8日 トラベルショップ001 歪な駆体に頭を悩まされたトラベルショップ、〈Part_2〉です。環境図を中心にご紹介した〈Part_1〉は、こちらをごらんください。⇒ 歪な駆体を陳列スペースにしたトラベルショップ〈Part_1〉 内部に照明を組み込んだ […] 続きを読む
いびつな建築駆体を陳列スペースにしたトラベルショップ〈Part_1〉 更新日:2021年4月8日 公開日:2021年4月5日 トラベルショップ001 今回は、トラベル用品及び、トラベル関連のショッププランです。 売り場スペースのほぼ中央に、大きなダクトスペースがありまして・・・。 そこをどう活用するか、頭を悩ませました。そんなトラベルショップの図面事例です。 歪な駆体 […] 続きを読む
2つのブランドで構成された百貨店平場のキッズショップ〈什器図編〉 公開日:2021年4月1日 キッズウェア001 前回でこのキッズショップの環境関連をご覧いただきましたが、今回から単品什器を追ってご紹介していきます。 環境図編はこちらです。⇒ 2ブランドで構成された百貨店平場のキッズショップ〈環境図編〉 では什器図編をごらんください […] 続きを読む
2つのブランドで構成された百貨店平場のキッズショップ〈環境図編〉 公開日:2021年3月29日 キッズウェア001 今回から、キッズショップの図面事例を行っていきます。百貨店の平場に、2ブランドで構成されている図面事例です。 柱廻りを特化させた平面レイアウト まず、平面図をご覧ください。 あっさりした図面で申し訳御座いません。別に、手 […] 続きを読む
女性目線でつくられた人気スイーツ&カフェショップの作図集_什器編その2 更新日:2022年4月28日 公開日:2021年3月27日 カフェ003 今回で、「女性目線でつくられた人気スイーツ&カフェショップの作図集」は、終了します。 それでは、先回と同様の什器指示図を載せておきますので、解説分と照らし合わせて進めてください。 先回は、什器番号⑥〜⑨まで進めました。本 […] 続きを読む
女性目線でつくられた人気スイーツ&カフェショップの作図集_什器編その1 更新日:2022年4月28日 公開日:2021年3月23日 カフェ003 今回は、前回の続きとなります。「女性目線でつくられた人気スイーツ&カフェショップの作図集_什器編その1」をお届けします。 尚、什器図の枚数が少し多いので、2回に分けてご紹介しますることとなりました。 また、各什器の位置を […] 続きを読む
女性目線でつくられた人気スイーツ&カフェショップの作図集_造作図編 更新日:2022年4月28日 公開日:2021年3月19日 カフェ003 今回は、「女性目線でつくられた人気スイーツ&カフェショップの作図集_環境図編」の続きです。 内容は、店舗図面を描くときに整理項目も含め、環境図、造作図、什器図とカテゴリーごとに分けて描いています。 そのうちの、造作図を今 […] 続きを読む
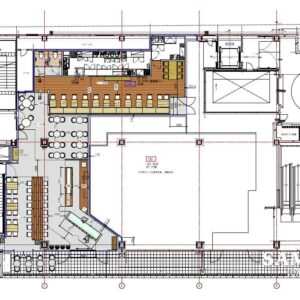
女性目線でつくられた人気スイーツ&カフェショップの作図集_環境図編 更新日:2022年4月28日 公開日:2021年3月16日 カフェ003 効率よくまとめられた平面計画 全体を見ていただければお分かりのように、ゾーンを3つに、分けたレイアウトとなってます、。 フロントは、視認性を高めるため、レジ台を設置して賑わいが出るようにまとめています。 ビッグテーブルを […] 続きを読む
アメリカ発アウトドア系ブランドのショップ事例〈什器図〉 公開日:2021年3月12日 メンズ(アウトドア)013 続いては、什器図をご覧いただきます。最初は、ディスプレー什器のご紹介です。 前回ご紹介した環境図と詳細図はこちらからどうぞ。⇒ アメリカ発アウトドア系ブランドのショップ事例〈環境図・什器図〉 汎用性の高いディスプレイパネ […] 続きを読む
アメリカ発アウトドア系ブランドのショップ事例〈環境図・詳細図〉 公開日:2021年3月10日 メンズ(アウトドア)013 今回は、メンズのアウトドアショップを掲載します。 元々は、有名なシューズブランドで、一時期だけアパレルショップを展開していました。アウトドア系の商品が主力となっていましたが、突然日本から撤退していたブランドです。 では、 […] 続きを読む
婦人服飾雑貨コーナーの環境リニューアル計画事例 公開日:2021年3月8日 婦人雑貨012 百貨店内にある、婦人服飾雑貨コーナーののご紹介です。今回の図面事例は、環境リニューアルのみになり、新規什器はありませんでした。 ですので、代表的な環境図と造作図だけの事例になります。 転用什器を利用した平面プラン 地方百 […] 続きを読む
居抜き物件をリノベーションしたカフェの図面事例〈Part-2〉 公開日:2021年3月5日 カフェ004 前回の続きで、居抜き物件をリノベーションしたカフェの図面事例〈Part-2〉のご紹介です。ゆっくりご覧ください。 クラシックなFIX窓の詳細図 店頭フロントの、ウインドの詳細図です。開閉しそうですが、ダミーです。この場合 […] 続きを読む
居抜き物件をリノベーションしたカフェの図面事例〈Part-1〉 公開日:2021年3月1日 カフェ004 今回は、本格珈琲が専門にしているカフェの図面事例をご紹介します。 平面図をよくよく見てみると、既存とか、新設なんて言葉が出てきています。この物件は新設工事ではなく、居抜き物件をリノベーションしたのです。 さて、その内容と […] 続きを読む
昭和レトロ風な小洒落た大衆食堂の図面事例〈什器編〉 更新日:2021年3月2日 公開日:2021年2月26日 ダイニング002 昭和レトロ風な小洒落た大衆食堂の図面事例、環境編・各部詳細図編に続き什器編のご紹介です。では、ごらんください。 サンプルケースの姿図と断面図 店頭にあるサンプルケースとしては少し存在感がないサイズですが、お弁当のテイクア […] 続きを読む
昭和レトロ風な小洒落た大衆食堂の図面事例〈各部詳細図編〉 公開日:2021年2月22日 ダイニング002 昭和レトロ風な小洒落た大衆食堂環境編に続きまして、各部詳細図をご紹介します。 環境編をまだご覧になっていない方は、こちらからどうぞ。⇒ 昭和レトロ風な小洒落た大衆食堂の図面事例〈環境編〉 ファサード断面図(3箇所) ファ […] 続きを読む
昭和レトロ風な小洒落た大衆食堂の図面事例〈環境図編〉 公開日:2021年2月19日 ダイニング002 今回は、昭和レトロな雰囲気とあたたかい家庭料理が楽しめる大衆食堂の事例をご紹介します。 今風に言えばビュッフェ形式のスタイルで、豊富な種類の総菜を自分の好みで自由選んで食べれる食堂なんです。ではまず、環境図からご覧下さい […] 続きを読む
ラーメン博物館_各店舗のレトロなファサード集〈Part_3〉 更新日:2021年2月22日 公開日:2021年2月15日 ラーメン001 〈Part_1〉〈Part_2〉に続き、ラーメン博物館_の各店舗ファサード意匠図面集のご紹介しています。〈Part_3〉は、各断面詳細図です。 ファサード断面詳細図 先回紹介した「ラーメン博物館」の中のひと店舗、ファサー […] 続きを読む
ラーメン博物館_各店舗のレトロなファサード集〈Part_2〉 公開日:2021年2月12日 ラーメン001 引き続き、ラーメン博物館_の各店舗ファサード意匠図面集のご紹介です。〈Part_1〉では本瓦屋根、今回は〈Part_2〉木工組染色屋根をご紹介します。 では、ゆっくりごらんください。 木工組染色屋根-その1 今回は、先回 […] 続きを読む
ラーメン博物館_各店舗のレトロなファサード集〈Part_1〉 公開日:2021年2月9日 ラーメン001 今回は少し嗜好を変えまして、昔携わった面白い物件があったので、ご紹介します。 ラーメン博物館なんてものを依頼されて、各店舗ファサード意匠図の実施図を受けたのです。その数々をご紹介します。 ただ、如何せんかなり以前の物件で […] 続きを読む
ファミリー向けカジュアルショップのプロトタイプ事例〈Part_2〉 公開日:2021年2月5日 ファミリー001 〈Part_1〉に続き、ファミリー向けカジュアルショップのプロトタイプの什器図をご紹介します。前回の記事は、下記からご覧になれます。 ガラス棚を取り付けたシングルハンガーラックの姿図 これは、海外から直接送ってきた図面で […] 続きを読む
ファミリー向けカジュアルショップのプロトタイプ事例〈Part_1〉 公開日:2021年1月25日 ファミリー001 10数年前に、話題になった海外カジュアルブランドの平面図です。 SPA全盛期で、日本での出店計画では、50坪・80坪・100坪というプロトタイプを作成していました。このショップのデータが、しっかり残ってましたのでご紹介し […] 続きを読む
メンズアウトドアショップ_インショップ出店の図面事例 公開日:2021年1月22日 メンズ(アウトドア)007 今回は、百貨店でのインショップ出店の図面事例をご紹介します。 地方百貨店の事例ですが、有名なメンズアウトドアショップです。 レイアウトとしては、参考になるものと感じています。 VPゾーンが明確な平面レイアウト 店頭には、 […] 続きを読む
回遊性を高める客導線と作業効率が抜群なメガネショップ〈什器図編〉 更新日:2021年1月25日 公開日:2021年1月19日 メガネショップ001 環境図に引き続き、メガネショップの各什器図のご紹介です。では、ごらんください。環境図をまだ見ていない方は、下記よりごらんください。 ガラス棚構成での壁面什器詳細図 この作図は、先回から進めているメガネショップの壁面を表し […] 続きを読む
レディースカジュアルショップ改装物件の図面事例 公開日:2021年1月14日 レディースカジュアル013 今回からは、また新しいレディースカジュアルショップ改造物件の図面事例をご紹介していきます。 この店舗は、老舗メーカーが展開するカジュアルブランドです。今回は、什器が全て他店からの転用だったので作図の必要はありませんでした […] 続きを読む
回遊性を高める客導線と作業効率が抜群なメガネショップ〈環境編〉 公開日:2021年1月12日 メガネショップ001 今回は、メガネショップをご紹介していきます。 回遊性が高く、スタッフの作業効率まで考え抜かれた素晴らしいレイアウトがなされたショップです。MDが違っても、売り場を造る設計者にとって参考になる平面プランです。参考にしていた […] 続きを読む
華やかなキャンディーショップの店舗事例〈環境図〉 更新日:2021年1月12日 公開日:2021年1月7日 キャンディ002 昔、子供の頃、両親に連れて行ってもらった百貨店キャンディショップ。誰もが懐かしい思い出のある空間です。 当時は、大きなターンテーブルに区分けのボックスが有り、それぞれのボックスに違った種類のキャンディがいっぱい!そこには […] 続きを読む
ショッピングセンター内の携帯電話ショップ図面事例 公開日:2021年1月5日 家電(携帯電話)001 今回は、ショッピングセンター内にある携帯電話ショップの図面事例です。家電売り場中央に設けられた区画のため、什器のみで構成されています。壁面などの環境に関わる図面はありませんので、この記事で完結です。 では、始めます。 単 […] 続きを読む
ステーショナリーコーナーの図面事例〈什器図_中央エリア〉 更新日:2022年4月29日 公開日:2020年12月24日 ステーショナリー001 中央エリアの平面図 ステーショナリーコーナーの作図事例は、この中央エリアが最後になります。本当に、すごい数の什器がありますね。設計も時間がかかりましたが、製作も大変だったと聞いています。 可動式ボックスと組み合わせたディ […] 続きを読む
ステーショナリーコーナーの図面事例〈什器図_柱廻り〉 更新日:2020年12月24日 公開日:2020年12月22日 ステーショナリー001 ステーショナリーコーナーの環境図、壁面・レジ廻りに続き、柱廻りの図面事例になります。上記平面図の什器番号と、照らし合わせながらごらんください。 同じフォルムで統一感を出した2本の柱廻り什器 このステーショナリーコーナーに […] 続きを読む
ステーショナリーコーナーの図面事例〈環境図_壁面・レジ廻り〉 更新日:2022年8月6日 公開日:2020年12月17日 ステーショナリー001 今回から、各部造作図と什器図の事例に進みます。前回でもご説明したとおり、ステーショナリーコーナーは図面枚数が多いので、大きく3つのエリアに分けてご紹介していきます。 また、各什器には番号を付けて整理していますので、合わせ […] 続きを読む
ステーショナリーコーナーの図面事例〈環境図_平面図・展開図〉 更新日:2020年12月24日 公開日:2020年12月14日 ステーショナリー001 今回から新しく、ステーショナリーコーナーの図面事例をご紹介します。 まずはショップの全体像を把握していただくために、フロア平面図を用意しましたのでご覧下さい。2機あるエスカレーに挟まれた2区画のうち、左側のコーナーが今回 […] 続きを読む