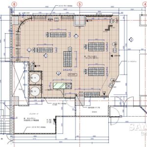
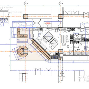
デニム中心のメンズカジュアルショップ〈環境図編〉 公開日:2022年2月7日 メンズ(カジュアル)020 今回、お届けするショップは、かつて一世を風靡した海外ブランド。デニム中心のメンズカジュアルショップです。今回は店舗環境図をご覧頂き、2回目でそのコーナー詳細図をお届けします。 個性ある商品と共に、環境図でも随所に興味をそ […] 続きを読む
粉もん&鉄板焼き専門の居酒屋店-Part3〈什器図〉 公開日:2022年2月2日 居酒屋001 今回は什器を説明していきますが、先回までの店舗環境図は理解いただけましたか?飲食店は、まだ経験したことのない人にとって、この店舗事例はそれほどややこしくはないので、好都合と考えます。 什器説明の前に、復習のためにも以前の […] 続きを読む
粉もん&鉄板焼き専門の居酒屋店-Part2〈建具図〉 更新日:2022年2月1日 公開日:2022年1月28日 居酒屋001 先回の『粉もん&鉄板焼き専門の居酒屋店-Part1〈環境図〉』は、ご理解なさいましたか?それほどの内容では無かったので、問題なく進めたと感じます。 さて、今回もその続きで、建具図などを進めていきます。飲食店と言うことで、 […] 続きを読む
ショッピングモールの一角を担う本格的なコーヒー専門店〈什器図面〉 公開日:2022年1月14日 カフェ005飲食店 先回の『ショッピングモールの一角を担う本格的なコーヒー専門店〈環境図面〉』は理解していただけましたか、シンプルな店舗でしたので、理解するのは早かったと察します。 さて、今回はその店舗の什器群をご紹介しましょう。その前に先 […] 続きを読む
ショッピングモールの一角を担う本格的なコーヒー専門店〈環境図面〉 公開日:2022年1月12日 カフェ005飲食店 最近は、何処にっても『コーヒーショップ』をよく目にします。やはり、コーヒーが日本人に定着したと言う証しですね。 ショッピングモールなどへ行くと必ずといっていいほど、目にするショップで、酷くなると2〜3店舗は出店してますね […] 続きを読む
英国がルーツのダンディなメンズショップ《什器図面》 更新日:2022年9月28日 公開日:2022年1月4日 メンズ(ビジネス)019 この記事で、英国がルーツのダンディなメンズショップ事例は、最後になります。 このショップでは、中央にレイアウトする什器が3台しかありません。いかに壁面の機能が充実しているか、お分かりいただけると思います。 また、通路幅も […] 続きを読む
バッグショップ専門店はシンプル空間で商品を際立たせる!〈造作・什器図〉 更新日:2022年1月20日 公開日:2021年12月15日 メンズ服飾雑貨002 先月にシンプルな空間で商品が際立つバッグショップ〈環境図〉をお届けしましたが、それに関連する作図資料がやっと見つかりました。 先回に引き続き、図面事例をご紹介します。今回は、造作図と什器図です。 尚、先回の作図集も確認し […] 続きを読む
バッグショップ専門店はシンプル空間で商品を際立たせる《環境図面》 公開日:2021年12月1日 メンズ服飾雑貨002 今回から、服飾雑貨カテゴリーとしてバッグショップをご紹介します。このショップは、カジュアルバッグからビジネスバッグまで幅広いタイプを展開しています。 職人が作るこのバッグは、品質はもちろんのこと機能的でデザイン性も高いた […] 続きを読む
英国がルーツのダンディなメンズショップ《壁面造作図面_その2》 更新日:2022年1月4日 公開日:2021年11月29日 メンズ(ビジネス)019 前回に続き、『英国がルーツのダンディなメンズショップ』の壁面造作2をお届けします。前回の作図事例を確認しもって進めてください。 その前に、各詳細図の位置をマーキングした指示図を貼っておきますので、以下の指示図と平行して今 […] 続きを読む
英国がルーツのダンディなメンズショップ《壁面造作図面_その1》 更新日:2022年1月4日 公開日:2021年11月17日 メンズ(ビジネス)019 先回は、『英国がルーツのダンディなメンズショップ』のショップ環境図をご覧頂きましたが、ご理解なさいましたか?今回はこのショップの、コーナー詳細図を進めていきます。平面詳細図という人もいますが、私はコーナー詳細図、施工図と […] 続きを読む
英国がルーツのダンディなメンズショップ《環境図面》 更新日:2022年1月4日 公開日:2021年11月17日 メンズ(ビジネス)019 ビジネス、カジュアル共に持ち合わせたスタイリングショップ 9月、10月と非常に忙しい状態でしたので、しばらく記事を投稿出来ずにいました。ですから、久しぶりの投稿となります。 今回の店舗事例は、は、英国がルーツとなったダン […] 続きを読む
イートインスタイルの飲食テナント②の作図事例 公開日:2021年9月6日 ダイニング003 今回も、『イートインスタイルの飲食テナントの作図事例』をお届けします。 今回は、焼き肉で有名な『たむら』さんのイートインスタイルの店舗です。 焼き肉屋さんのこのスペース的には、ちょっときつい気もします。 しかし、そこは有 […] 続きを読む
イートインスタイルの飲食テナント①の作図事例 更新日:2022年4月28日 公開日:2021年8月23日 ダイニング003 かなり以前に、『イートインスタイルの飲食店舗(カウンタースタイル)』をごご紹介しましたが、それ以後、資料が探せなくて、ほったらかしにしてました。 やっと資料整理が出来、今回からこのエリアでテナントとして入居しているそれぞ […] 続きを読む
レンタルスタジオの店舗作図集〈建具図編〉 公開日:2021年8月17日 カルチャースクール 『レンタルスタジオの店舗作図集』も残すところ建具図面だけとなりました。店舗設計にとって、建具は重要な位置にあります。 最近は、既製品として多くで廻ってますが、デザインについてはもうひとつ!やはりデザイン性の高い店舗では、 […] 続きを読む
レンタルスタジオの店舗作図集〈造作図・什器図編〉 更新日:2021年8月17日 公開日:2021年8月9日 カルチャースクール 先回に引き続き、今回は、『一般的なレンタルスタジオの作図集〈造作図・什器図編〉』を説明していきますので、しっかり勉強してください。その前に、復習を兼ねて先回の環境図編を確認しておきましょう。今回は、造作図と什器図ですから […] 続きを読む
レンタルスタジオの店舗作図集〈環境図編〉 更新日:2021年8月17日 公開日:2021年8月2日 カルチャースクール 今回からは、レンタルスタジオの作図集をお届けします。最近は,街の中に多くとはいいませんが、レンタルスタジオがちらほら見受けられます。 昨今の音楽ブームでしょうか、普段街中で歩いていると,楽器ケースを持った人をよく見ます。 […] 続きを読む
西洋人形をテーマにしたレディースカジュアルショップ〈什器図〉 公開日:2021年7月28日 レディースカジュアル004 先回から、進めてる『西洋人形をテーマにしたレディースカジュアルショップ』は、今回の什器図で最終とします。 それでは、什器位置図を見ながら進めて行きます。什器図と言っても、難しいとモノは見当たりません。初心者のかたにも理解 […] 続きを読む
西洋人形をテーマにしたレディースカジュアルショップ〈詳細図〉 公開日:2021年7月20日 レディースカジュアル004 今回も、『有名なドールをテーマにしたレディースカジュアルショップ』の続きです。 先回は、この店舗の環境編をお届けしましたが、理解できましたか。私は作図を進めるときは必ず、環境図、詳細図、什器図とカテゴライズします。 では […] 続きを読む
コミュニケーションルーム環境図_その3(詳細図&什器図) 更新日:2022年5月20日 公開日:2021年7月16日 ユーティリティ 3回にわたってお届けした『カンファレンスルーム環境図』も、今回の詳細図&什器図で終了となります。 非物販の空間はめったに携わることはありませんが、これも店舗設計の一環として、年に4〜5物件はありました。 受付エリアのクロ […] 続きを読む
西洋人形をテーマにしたレディースカジュアルショップ〈環境編〉 更新日:2021年7月20日 公開日:2021年7月6日 レディースカジュアル004 今回から新たなショップをご紹介します。知名度があり、一部の女性ファンも多い西洋人形をテーマにしたショップです。 現存するか否かは不明ですが、私が携わったショップの中ではとても異例でした。 ちょっと気恥ずかしさも感じてしま […] 続きを読む
コミュニケーションルーム環境図_その2〈展開図〉 更新日:2022年5月20日 公開日:2021年6月30日 ユーティリティ 今回は、『コミュニケーションルーム環境図_その1(平面図関連)』の続きで、展開図をご覧頂きます。 その前に、展開指示図を添付しておきますので、確認よろしくお願いします。 落ち着きを感じさせる空間 今回は、それぞれの展開図 […] 続きを読む
コミュニケーションルーム環境図_その1〈平面図関連〉 更新日:2022年5月20日 公開日:2021年6月23日 ユーティリティ 今回、紹介するのは商業施設では無く、コミュニケーションを中心とした、施設です。 『カンファレンスルーム』なんてたいそうなネーミングを付けましたが、要は個人個人が、集まってコミュニケーション出来るスペースと思ってください。 […] 続きを読む
インテリアショールームの店舗事例〈造作&什器編〉 公開日:2021年6月18日 ショールーム 先回に続き、今回は『インテリアショールームの店舗事例〈什器編〉』を届けします。 什器と言っても、その半分以上の什器がメーカーの持ち込みとなった現場でしたから、確かにこういったショールームの什器数より少なくなります。 では […] 続きを読む
インテリアショールームの店舗事例〈環境図編〉 更新日:2021年6月18日 公開日:2021年6月15日 ショールーム 今回は、新しい業態の図面事例をご紹介します。 住まいなどの空間をコーディネートする、インテリアメーカーのショールームです。 店舗と違って商品を販売する事を目的としていませんが、「如何にディスプレイするか」という点では共通 […] 続きを読む
鋼材表_その3<スチール丸パイプ> 公開日:2021年6月14日 マテリアル ■円形(規格長さ=5.5m) サイズ 重量(kg/m) 外径(mm) t(mm) 6 1.0 0.12 8 1.0 0.17 9 1.0 0.20 9.5 1.0/1.2 0.21/0.25 10 1.0/1.2 0.2 […] 続きを読む
鋼材表_その5<ステンレス角パイプ> 公開日:2021年6月14日 マテリアル ■正方形(規格長さ=5.5m) サイズ 重量(kg/m) A×B(mm) t(mm) 7×7 1.0 0.22 9×9 0.8/1.0 0.21/0.25 10×10 1.0/1.2 0.28/0.34 12×12 1. […] 続きを読む
鋼材表_その4<ステンレスフラットバー> 更新日:2021年6月14日 公開日:2021年6月12日 マテリアル ■フラットバー(規格長さ=4.0m) サイズ 重量(kg/本) サイズ 重量(kg/本) t×A(mm) t×A(mm) 2×6 0.19 4×13 1.65 2×8 0.29 4×15 1.90 2×9 0.45 4× […] 続きを読む
鋼材表_その2<スチール角パイプ> 更新日:2021年6月14日 公開日:2021年6月10日 マテリアル ■正方形(規格長さ=5.5m) サイズ 重量(kg/m) A×B(mm) 厚み(mm) 9×9 1.0 0.29 11×11 1.2 0.44 13×13 1.2 0.70 16×16 1.2 0.81 19×19 1. […] 続きを読む
鋼材表_その6<ステンレス丸パイプ> 更新日:2021年6月14日 公開日:2021年6月10日 マテリアル ■円形(規格長さ=5.5m) サイズ 重量(kg/m) 外径(mm) t(mm) 5 0.8 0.10 6 0.8/1.0 0.10/.012 7 0.8/1.0 0.12/0.15 8 0.8/1.0 0.14/0.1 […] 続きを読む
鋼材表_その1<スチールフラットバー> 更新日:2021年6月14日 公開日:2021年6月10日 マテリアル ■フラットバー(規格長さ=5.5m) サイズ 重量(kg/m) サイズ 重量(kg/m) t×A(mm) t×A(mm) 3×13 0.31 6×13 0.61 3×16 0.38 6×16 0.75 3×19 0.45 […] 続きを読む
商品の陳列を優先したメンズショップの店舗事例〈什器図編〉 公開日:2021年6月10日 メンズ(ビジネス)016 環境図編に続きまして、メンズスーツショップ什器図編のご紹介です。環境図編は、下記からご覧いただけます。 フェイスアウトとスリーブアウトで見せる定番什器 では、この柱巻き什器からのご紹介です。 上部の幕板を、抜 […] 続きを読む
商品の陳列を優先したメンズショップの店舗事例〈環境図編〉 公開日:2021年6月7日 メンズ(ビジネス)016 今回から、メンズスーツショップ事例をご紹介します。 実はこの事例は、あまり参考にならないかもしれません。というのも、各記事で指摘していますがショップとしてのアプローチが弱いのです。 しかし、店舗を設計する際の注意すべき点 […] 続きを読む
5.3坪の百貨店内テナントショップの店舗事例〈什器図編〉 公開日:2021年6月4日 メンズ(カジュアル)012 5.3坪の百貨店内テナントショップの店舗事例、今回は什器図編のご紹介です。環境図編は、下記からご覧いただけます。 ショップの視認性を高めるサインパネル まずは、柱前の内照式サインパネルのご紹介です。 パネル自体は、ニッケ […] 続きを読む
5.3坪の百貨店内テナントショップの店舗事例〈環境図編〉 公開日:2021年5月31日 メンズ(カジュアル)012 今回は、あるメーカーが百貨店内で展開するメンズショップをご紹介です。 わずか5.3坪の小さなテナント区画ですが、小さいながらも存在感をアピールしたショップになっています。コンパクトな店舗設計のご参考にしてください。 小さ […] 続きを読む
可動什器だけでコンパクトに構成したキッズショップ〈什器図編〉 公開日:2021年5月27日 キッズウェア002 コンパクトなキッズショップ、各什器図のご紹介です。 環境図は、下記をごらんいただけます。 ショップフロントの背パネル付きステージ什器 まずは、ファサードエリアのステージ什器です。ステージの高さを、350mmと高く設定して […] 続きを読む
可動什器だけでコンパクトに構成したキッズショップ〈環境図編〉 公開日:2021年5月24日 キッズウェア002 今回は、キッズショップをご紹介します。百貨店などでよく見受けられるパターンのショップ展開です。 売り場面積が小さいため、可動什器だけで構成したコンパクトなショップ事例です。 柱巻きが中心のコンパクトな平面プラン 小さな面 […] 続きを読む