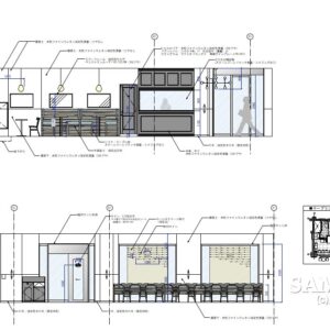
ゆったりとした空間の婦人靴売り場 【環境図_02】 更新日:2026年1月29日 公開日:2026年1月28日 レディースシューズ はじめに! 今回は靴ショップの展開図を題材に、ファサード〜入口の核什器〜ストックまわりの細部まで追っていきます。 魅せ場の“派手さ”も店には要るけど、それを最後まで崩さず成立させるのは、納まり・建具・カーテン処理みたいな […] 続きを読む
ゆったりとした空間の婦人靴売り場 【環境図_01】 公開日:2026年1月15日 レディースシューズレディース服飾関連その他 はじめに 長年店舗設計に携わっていると、「派手さ」よりも「無理のなさ」が、最終的な仕上がりや使われ方を大きく左右することを実感します。 図面の段階で無理をしている案件ほど、現場で必ずどこかに歪みが出るものです。 今回の事 […] 続きを読む
ベーシックな店づくりが光る、正統派トラッドショップ《什器図_01》 公開日:2025年10月30日 メンズ(トラッド)006 はじめに 『ベーシックな店づくりが光る、正統派トラッドショップ』も今回で4回目に入ります。今までの、環境図、造作図は理解されましたか>? それほどややこしい店舗では無いので、理解も早いと思います。また、図面屋初心者の方も […] 続きを読む
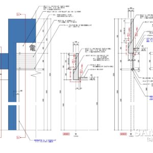
ベーシックな店づくりが光る、正統派トラッドショップ《造作図_02》 公開日:2025年9月9日 メンズ(トラッド)006 はじめに 今回は、『ベーシックな店づくりが光る、正統派トラッドショップ《造作図_02》』です。既に、環境図をご覧になった方は、各コーナーの拡大バージョンで、各説明がある程度と思ってください。 以下、それぞれの図面には、図 […] 続きを読む
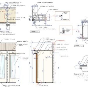
ベーシックな店づくりが光る、正統派トラッドショップ《造作図_01》 更新日:2025年9月9日 公開日:2025年9月4日 メンズ(トラッド)006 はじめに 今回は、店づくりが光る、『正統派トラッドショップ』の造作図集_01を進めます。造作図と言うより、各コーナー図と言った方が良いかもしれません。 各コーナーによっては、断面図もありますが造作図とは言えない図面も有り […] 続きを読む
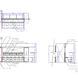
ベーシックな店づくりが光る、正統派トラッドショップ《環境図_02》 更新日:2025年9月2日 公開日:2025年7月25日 メンズ(トラッド)006 トラッドショップの”らしさ”を感じるデザイン 今回は、前回ご紹介した『ベーシックな店づくりが光る、正統派トラッドショップ《環境図_01》』の続編です。 今回の《環境図_02》では、主に展開図を中心 […] 続きを読む
ベーシックな店づくりが光る、正統派トラッドショップ《環境図_01》 更新日:2025年9月2日 公開日:2025年7月15日 メンズ(トラッド)006 はじめに! この店舗は2004年に竣工したものですが、図面を見るかぎり、今の店舗群と比べてもまったく古さを感じさせません。トラッドショップからかもしれませんが…….。 空間の構成力や什器のバランス […] 続きを読む
ローコストで汎用性のある受付カウンターとそのエリア 公開日:2025年7月14日 サービスユーティリティ ちょっとしたアレンジが可能なので応用がきく! 今回は、受付エリアの作図事例をご紹介します。といっても、特別なデザイン性があるわけではなく、あくまでシンプルで汎用性の高い受付カウンターを想定して作成しました。 なお、この図 […] 続きを読む
カジュアルテイストのファミリー型ショップ《什器図_02》 更新日:2025年7月8日 公開日:2025年2月27日 ファミリー003 はじめに! 今回は、『カジュアルテイストのファミリー型ショップ』の什器図_02をお伝えしていましょう。環境図から、造作図、什器図_01と進めてきましたが、理解されてますか>? このショップは、店舗設計者として初心者向けで […] 続きを読む
カジュアルテイストのファミリー型ショップ《什器図_01》 公開日:2025年2月21日 ファミリー003 はじめに! 今回は、『カジュアルテイストのファミリー型ショップ《什器図 _01》』を前回と同じく以下の指示図を使って説明しています。 また、前回までの情報を見たい方は、最下段の関連記事以のサイトへお進みください。 そうで […] 続きを読む
カジュアルテイストのファミリー型ショップ《造作図》 更新日:2025年2月21日 公開日:2025年2月20日 ファミリー003 はじめに! 『カジュアルカジュアルテイストのファミリー型ショップ《環境図》』は理解されましたか?店舗設計としては、かなり初歩的な事例です。 まず、店舗図面として、店舗環境図と造作図、それに単品什器群が挙げられます。全てを […] 続きを読む
カジュアルテイストのファミリー型ショップ《環境図》 更新日:2025年2月19日 公開日:2025年2月17日 ファミリー003 はじめに 2002年に投稿した記事ですが、あまりにもお粗末なので書き直しというわけです。当時、一世風靡していた『ネクスト・アイ』というフレンチカジュアルブランドで百貨店で展開していたようです。 あれから、20年経ちました […] 続きを読む
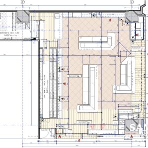
集約化したフィッティングルームを考案した事例《FR外部詳細図》 公開日:2025年2月6日 ユーティリティ はじめに! かなり、久々の投稿です。実物件入るといつもこうだから困りますが、まだまだ必要視されていると感じ嬉しい次第です。 何でもそうですが、毎日コツコツしてれば成果が出るって感じです。 それでは進めますが、この図面事例 […] 続きを読む
集約化したフィッティングルームを考案した事例《FR内部詳細図》 公開日:2024年11月19日 ユーティリティ はじめに! 今回は、先回の続きで『集約化したフィッティングルームを考案した事例《FR内部詳細図》』を進めます。ここでは、フィッティングルーム(以下FR)の基本を学べます。 それでは、まず詳細図の位置を確認してください。 […] 続きを読む
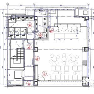
集約化したフィッティングルームを考案した事例《環境図》 更新日:2024年11月19日 公開日:2024年10月26日 サービスユーティリティ はじめに! 今回は、フィッティングルーム(以後FR)の集約化を図った計画で描いた作図事例となります。 最近では、ユニクロあたりはこの形式で販売効率を図っていますが、その前には既に百貨店でもこのパターンで売り場効率を上げて […] 続きを読む
スーパーの食品売り場に不可欠なサービスエリア〈詳細図_02〉 公開日:2024年9月24日 サービス 各断面詳細図_02 久々の投稿となります。 それでは、前回からの続きで、『スーパーの食品売り場に不可欠なサービスエリア』のだんめん詳細図_02を進めて参ります。 これまでの事例内容は、理解されたでしょうか>?あまり見慣 […] 続きを読む
スーパーの食品売り場に不可欠なサービスエリア〈詳細図_01〉 更新日:2024年9月24日 公開日:2024年8月19日 サービス 各断面詳細図_01 先回の環境図については、理解して頂けたでしょうか? なんせ、初めて描いた図面なので旨く説明できたかは疑問ですし、見られた方も理解に苦しんだと感じます。 何れにせよ、どのような図面も対応が出来るのが私の […] 続きを読む
スーパーの食品売り場に不可欠なサービスエリア〈環境図〉 更新日:2024年8月22日 公開日:2024年8月14日 サービス はじめに 今回紹介するのは、食品売り場の一角に備えた「イオン水」を無料で提供するエリアです。 それぞれのスーパーでは「おいしい水」と称して、無料で提供知る店舗が増えていた頃ですかね。 これも客呼びの一環であって、当初はそ […] 続きを読む
シックな雰囲気と高級感漂うジュエリーショップ《単品什器》 更新日:2024年8月19日 公開日:2024年5月29日 アクセサリー002 はじめに! 連載でお届けしていた『シックな雰囲気と高級感漂うジュエリーショップ』は、今回の単品什器で最終となります。ああ〜〜長かったなって感じですが、最後までしっかり説明していきます 什器の配置については以下の平面図から […] 続きを読む
シックな雰囲気と高級感漂うジュエリーショップ《店内造作図02》 公開日:2024年5月23日 アクセサリー002 はじめに! 今回は、『シックな雰囲気と高級感漂うジュエリーショップ』の店内造作図の後半《02》をご紹介します。前回と同様の進め方で行います。 以前、お届けした店舗環境図については、理解していただいたと感じますが、まだの方 […] 続きを読む
シックな雰囲気と高級感漂うジュエリーショップ《店内造作図01》 更新日:2024年5月23日 公開日:2024年5月16日 アクセサリー002 はじめに! 今回は、『シックな雰囲気と高級感漂うジュエリーショップ』の店内造作図をご紹介します。ただ、紹介項目が多いため、二回に分けてお届けします。 前回と前々回の店舗環境図をしっかり理解して頂いたということで、今回は進 […] 続きを読む
シックな雰囲気と高級感漂うジュエリーショップ《店舗環境図02》 更新日:2024年5月16日 公開日:2024年5月10日 アクセサリー002 はじめに 先日からはじめた『シックな雰囲気と高級感漂うジュエリーショップ《店舗環境図》』ですが、今回は展開図を見ていくことにします。 図面自体はモノクロで仕上げましたが、ちょっと色気をつけみましたが、もう少しカラートーン […] 続きを読む
シックな雰囲気と高級感漂うジュエリーショップ《店舗環境図01》 更新日:2024年5月10日 公開日:2024年5月8日 アクセサリー002 はじめに! 先日、新たな店舗の資料が見つかったので、再度編集したら良いものが出来ました。そこで、皆さんと共有出来ればと考え投稿しました。 業態は高級ジュエリーショップです。 このようなショップが特に多く見られるのは、大型 […] 続きを読む
個性的なデザインで魅了するレディースショップ〈単品什器〉 更新日:2024年8月22日 公開日:2024年3月18日 レディース001 はじめに! 『個性的なデザインで魅了するレディースショップ』も本日で最後となります。順を追って進めれば、店舗設計が身近であって、それほど難しモノでは無いと気づいたはずです。 私は、この職業を生業としてもう40年経ちました […] 続きを読む
個性的なデザインで魅了するレディースショップ〈店舗造作〉 公開日:2024年3月2日 レディース001 はじめに 今回は、『個性的なデザインで魅了するレディースショップ』の店舗造作図を進めていきます。店舗設計において、環境図とは別に私の場合は、それぞれの造作図が不可欠なのです。 平面詳細図と呼んでいる人もいますが、私はコー […] 続きを読む
個性的なデザインで魅了するレディースショップ〈Part-2〉 更新日:2024年8月22日 公開日:2024年2月27日 レディース001 はじめに! 前回の『個性的なデザインで魅了するレディースショップ〈Part-1〉』の続きで、〈Part-2〉として今回は店舗環境で重要な展開図をお目にかけます。 出来れば、前回の〈Part-1〉も並行して見て […] 続きを読む
個性的なデザインで魅了するレディースショップ〈Part-1〉 更新日:2024年8月22日 公開日:2024年1月26日 レディース001 はじめに! 今回のショップ事例に上げたのが、7.5坪弱のこのレディーショップショップです。 無機質なコンクリート打ちっ放しといった素材で仕上げられている中に、大胆なデザイン、俗に言う奇をてらった個性的なショップです。 た […] 続きを読む
コンパクトな空間を上手く活用したリカーショップ〈単独什器〉 公開日:2023年12月6日 リカーショップ はじめに! 『コンパクトな空間を上手く活用したリカーショップ』も今回の什器編で終了となります。内容は、どうだろ?もう一つだったように感じます。 しかし、何かのヒントになればと共有しました。もう一度、最初からご覧のなって良 […] 続きを読む
コンパクトな空間を上手く活用したリカーショップ〈壁面造作什器〉_Part2 公開日:2023年12月1日 リカーショップ はじめに! 先回の『コンパクトな空間を上手く活用したリカーショップ』、壁面造作什器編は理解されましたか?難しいと言った什器では無いので理解されたかとは思います。 それでは残りの什器を今日は、紹介していきます。紹介と言って […] 続きを読む
コンパクトな空間を上手く活用したリカーショップ〈壁面造作什器〉_Part1 更新日:2023年12月1日 公開日:2023年11月7日 リカーショップ はじめに! 先回の『コンパクトな空間を上手く活用したリカーショップ』の環境図は理解して頂けましたか>?それほど、ややこしい図面ではなかったので問題は無いと考えます。 次はこの店舗の壁面に設置された造作什器を紹介していきま […] 続きを読む
コンパクトな空間を上手く活用したリカーショップ〈環境図〉 更新日:2023年11月7日 公開日:2023年11月1日 リカーショップ はじめに! 今回から新たな業態の店舗事例を紹介します。それは、『コンパクトな空間を上手く活用したリカーショップ』です。 第1回目は、いつものように環境設計から進めて行きます。続いてコーナー詳細図(平面詳細図)。最後に、什 […] 続きを読む
カジュアルなイタリアンダイニングの店舗事例〈建具図〉 更新日:2023年10月30日 公開日:2023年10月3日 ダイニング004 はじめに! おはようございます!季節も秋に入り、落ち着いて仕事も進められるようになりました。さて、今回は『カジュアルなイタリアンダイニングの店舗事例』最終のカテゴリーをお届けします。 内容としては、この店舗に取り付けられ […] 続きを読む
カジュアルなイタリアンダイニングの店舗事例〈什器図〉 更新日:2023年10月3日 公開日:2023年9月19日 ダイニング004ダイニング003 はじめに! こんにちは、今日は『カジュアルなイタリアンダイニングの店舗事例』の続きを進めます。今回は、什器図です。飲食店ですから、単独什器はそれほどの種類はありません。 また、「これは、ムズい!」って内容の什器はほとんど […] 続きを読む
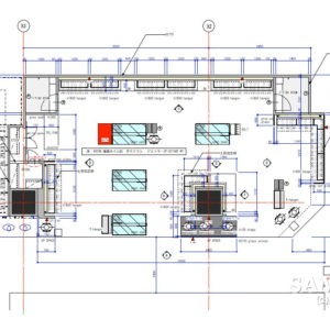
カジュアルなイタリアンダイニングの店舗事例〈造作図〉 更新日:2023年9月19日 公開日:2023年9月12日 ダイニング004 はじめに! 『カジュアルなイタリアンダイニングの店舗事例』も環境図が終わり、いよいよそれぞれの造作図に入るわけですが、環境図は理解出来ましたか? そうでなければ、遠慮せずにお問い合わせください。 それでは、造作図を始めま […] 続きを読む
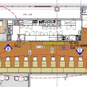
カジュアルなイタリアンダイニングの店舗事例〈環境図_02〉 公開日:2023年9月5日 ダイニング004 はじめに! 読者の皆さん、おはようございます。さて、今回は先回に続き『カジュアルなイタリアンダイニングの店舗事例』の環境図_02を紹介しましょう。 平面環境図、天井伏図の続きといえば、やはり展開図になります。以下に、展開 […] 続きを読む
カジュアルなイタリアンダイニングの店舗事例〈環境図_01〉 更新日:2023年9月5日 公開日:2023年8月31日 ダイニング004 はじめに! 今回から数回に分けてイタリアンレストランの店舗図をご紹介します。銘打って、『カジュアルなイタリアンダイニングの店舗事例』としておきます。 レストランって言うほどでは無く、ファストフード店といったスタイルの方が […] 続きを読む