はじめに
『ベーシックな店づくりが光る、正統派トラッドショップ』も今回で4回目に入ります。
今までの、環境図、造作図は理解されましたか>?
それほどややこしい店舗では無いので、理解も早いと思います。
また、図面屋初心者の方もゆっくりでいいですから、少しづつ進めてください。
この店舗に関するここまでの資料は欄外に示してありますので、そちらをご覧ください。
それでは、進めることにします。
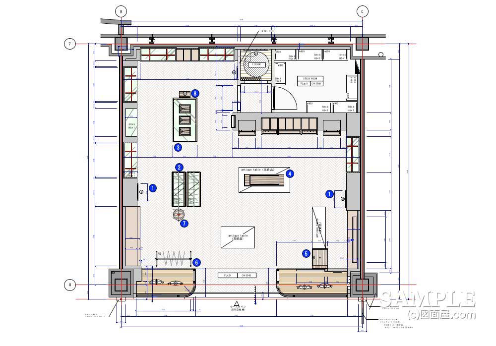
今回から2回に分けて、このショップの什器群を紹介します。
決して難しい什器はありません。以下平面図に什器指示を入れてますので、目を通してください。

① 壁面ミラー

どこにでもある、木枠の壁面ミラーパネルです。
初心者の方も、この絵面を見ればすぐに理解出来ますね。
ここで注意しておきます
簡単な図面ですが、このミラーパネルを壁面に如何に取り付けるかがポイントです。
断面図は描けているのですが、取り付けについてはその処理が成されていないのが残念です。
せめて、ビスを表現して『ビス固定』と指示していれば良いのですが……..。
もちろんビス固定で事足りますが、私は『ドッコ止め』という手法を使います。
参考までに以下サイトに若干『ドッコ止め』について記載していますので、参考にしてください!
■サイズ ■仕様 W1614×D150×H1614図面参照 吊りボックス・ステージ:木工ウレタン塗装仕上げ 固定棚・仕切り:t=10クリアガラス ■備考 20.05.08更新 背景 この頃(2007年 …
② フレキシブルなシステム什器

この什器も、特にデザインされた什器でも無さそうですが、フレキシブルに対応した汎用性のあるシステム什器です。什器自体にシステム(スリット)加工されたモノです。
ハンガーバー、棚などサイズさえ合えばフレキシブルに対応しますので、使い勝手が良いです。
この什器も、基本的に必須の什器なので、絶対に覚えておいてください。
ネットで、『システム什器』と打てば多くの情報が得られます。
③ オープンタイプの棚什器

固定棚ガラスを配したこの什器は、フレキシブルさはありませんが、存在感がって店舗空間がしまります。
この場合、ドレスシャツ専用の什器として扱われているようです。
特徴なありませんが、この店舗にとって重要な役割を担ってます。
図面右上に詳細図と、什器トップに置くトレーが表現されてますが、ちょっとしたアイデアを感じます。
ただ、詳細図についてはいまひとつって感じで、納得出来ません。
④ 上置き什器

今回の最後の図面は、上置きテーブルです。
下に破線で描かれているのは、既存什器かそれに類する什器と考えられます。
雛壇形式で、販売する意図が感じられますが、什器素材は合っているかが気がかりです。
売り方としては、まずまずの案でしょう。
これについても、見やすく、触れやすくと言うのが概念でしょう。私はそう感じます。
今回は以上とします。
ありがとうございました。
デザインランキングに参加してます。応援お願い致します!
↓ ↓ ↓
デザインランキング





