はじめに!

今回は靴ショップの展開図を題材に、ファサード〜入口の核什器〜ストックまわりの細部まで追っていきます。
魅せ場の“派手さ”も店には要るけど、それを最後まで崩さず成立させるのは、納まり・建具・カーテン処理みたいな地味な部分です。
こういうところを丁寧に描けるかどうかで、現場の詰まり方も、仕上がりの品も変わってきます。
初心者の方も同業の方も、「押さえるポイント」を一緒に確認していきましょう。ほな、いこか。
展開図指示は図面右上にありますが、若干見にくいので以下平面図を参照ください。
それでは!
はじめに 長年店舗設計に携わっていると、「派手さ」よりも「無理のなさ」が、最終的な仕上がりや使われ方を大きく左右することを実感します。 図面の段階で無理をしている案件ほど、現場で必ずどこかに歪みが出るものです。 今回の事 …
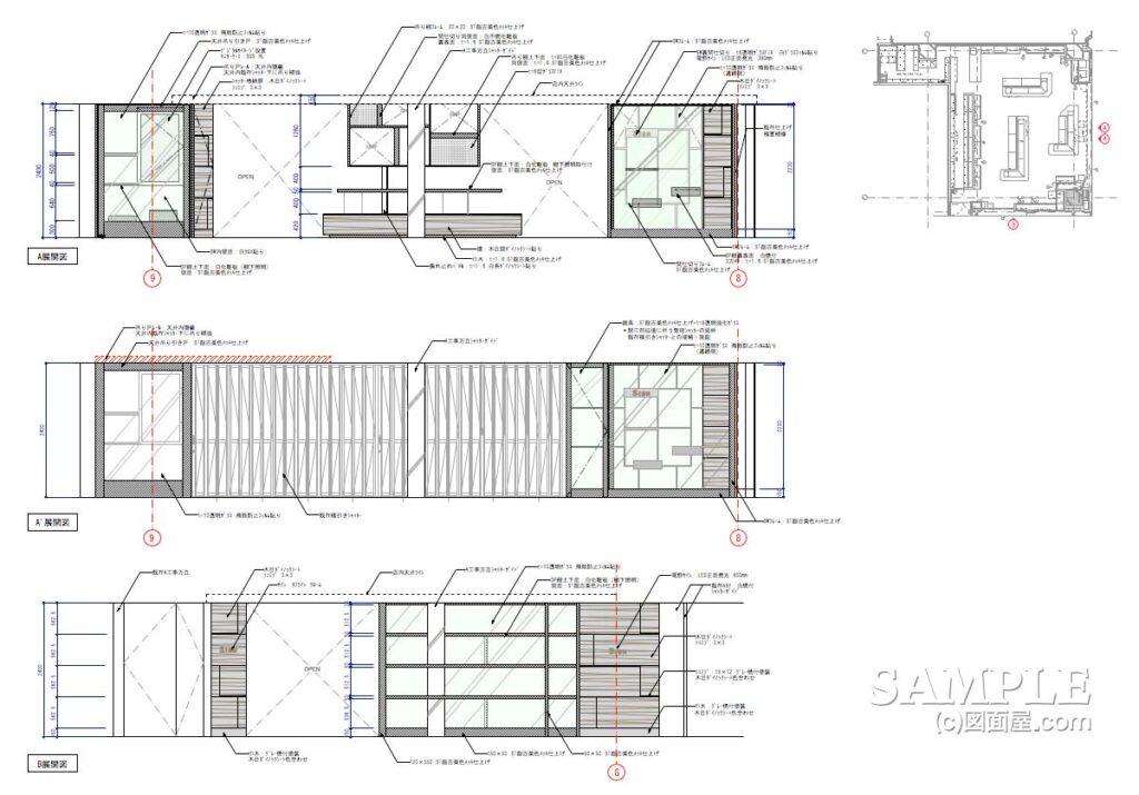
A展開図〜B展開図

A展開図は、左右のショーウインドでまず“掴み”を作って、中央はOPENタイプのカウンター+棚で売場の”核”を作っている構成です。
エントランス正面で素材の切り替えと抜け感のバランスが良くて、入った瞬間に「お、気持ちいいな」って思わせる開放感があります。ここは個人的にも、かなりインパクト強めです。
A’展開図はAの補助図で、セットバックした部分の見え方確認用、って理解でOKです。縦ルーバーっぽく見えるのは閉店後のシャッターで、透け感を残しながら奥をほどよく隠してくれます。
圧迫感を出さずにリズムが作れていて、左右のショーウインドと合わせて「透け/締め」のコントロールがうまい展開図ですね。
B展開図は、もうひとつのエントランス側の顔になる壁面です(キープランと合わせると分かりやすいです)。
店舗環境を木目のダイノックシートで揃えて店格を出しつつ、靴ショップらしく棚構成で“魅せる”のをちゃんと意識しています。入口まわりで、この落ち着き方は効きます。
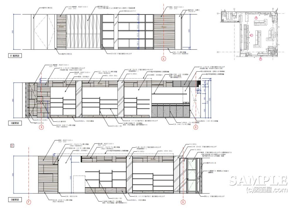
B’展開図〜D展開図

C展開図は、店舗奥側の壁面で、棚構成を見るとまさに“靴屋”らしいつくりです。壁面の多くがシステム壁で整理されていて、右側にはレジまわりに必須のバックカウンターが入っています。
派手さはないですが、そのぶん商品を主役にできる壁面で、上部に欄間を設けて面を締めているのも効いています。全体のデザイン統一感もこの辺りでよく見えます。
D展開図も同じトーンでまとめた壁面で、下部にステージやストックボックスを入れて、実用性を確保しながら表情を変えています。
高さの変化をここで作っているので、単調になりがちな棚面でも、見え方がちょっと生きてくるのがいいですね。
E展開図〜G展開図

E展開図は、ファサード展開図の「裏面側」を描いた図ですが、基本は“表ヅラの情報だけ”を拾っている内容です。断面的に見えてくる要素は、左右の壁面棚と、B展開図でも確認できたブロック風什器くらいで、絵面としてはかなりシンプルですね。
ここで、靴ショップでは欠かせない「ソファー(=試し履きのための“座り”)」が出てきました。売り場の居心地や滞留の作り方に直結するので、展開図の中でどう扱われているかは、図面屋として押さえておきたいポイントです。
全体としては順当なまとめ方で、このレベルの整理は手癖として身につけておくと強いです。
ちなみに、今回まとめたのはうちのスタッフでした。
F展開図は、エントランスから入って右壁面の展開です。前述のブロック風什器が見て取れて、その左側にはシステム棚が配置されています。
入口からの第一印象を受け止める面なので、「何を主役にして、何を脇役にするか」が読み取れるのが面白いところですね。
G展開図は、左がメインエントランス側、右がエントランス付近を表しています。展開図としては“どうってことない”構成に見えますが、だからこそ、エントランスの核になるメイン什器には意識を向けておきたいところです。
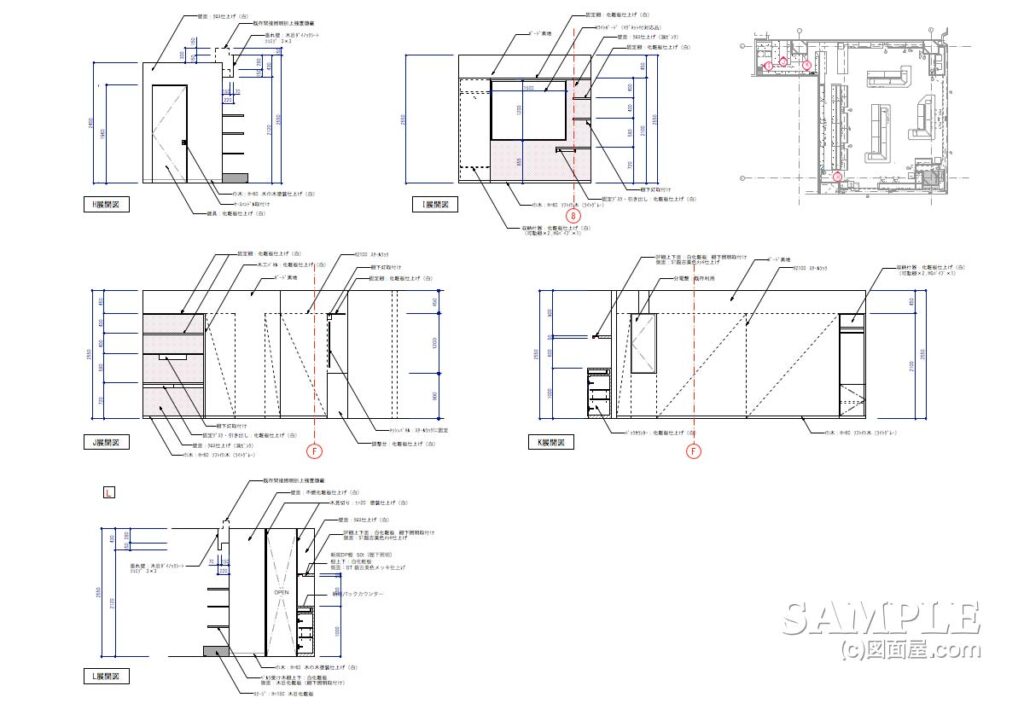
H展開図〜L展開図
ここから先は、細かい箇所の展開図が続きます。こういう部分を「うっかり」で省略する設計者、正直少なくありません。
けど、ここを落とすと現場が困る。図面屋としては、いちばん手を抜いたらアカンところです。「忘れてた!」で済ませる人には、ちょっと説教したくなる(笑)。
細部こそ、図面の信用が出るところやからね。

さて、H展開図は、店内側からストックルームまわりを表現した図です。
ここは店内を回遊しているお客さんの視界に入る可能性があるので、きちんと建具を付けて処理しています。
見える面は“ちゃんと建具”、この考え方は基本中の基本です。
I展開図・J展開図・K展開図は、店舗奥のストックルーム側の展開です。ここは機能優先のエリアなので、図面としての押さえどころは「納まり」と「使い勝手」。
細かい内容は、図面を見ながら各自で確認しておいてください。
最後のL展開図は、先ほどのH展開図のちょうど反対側を描いた面になります。キープランには出てこない位置ですが、ここは建具ではなくカーテン処理にしています。
要は、店内から見える面は建具で整えて、裏側は運用に合わせて軽く納める、という使い分けですね。
什器の説明も大事やけど、店舗の設計って要素が多くてほんま大変です。せやけど、未来の図面屋を目指す若い人らのために、こういう“地味やけど大事なところ”をちゃんと残していきたい、ってことです。
以上、小林でした。
デザインランキングに参加してます。応援お願い致します!
↓ ↓ ↓
デザインランキング


