店舗設計 A to Z 〜内装設計の手引き〜

  • トップページ
  • プロフィール
  • 図面作成のお手伝いします

「レディースシューズ」の記事一覧


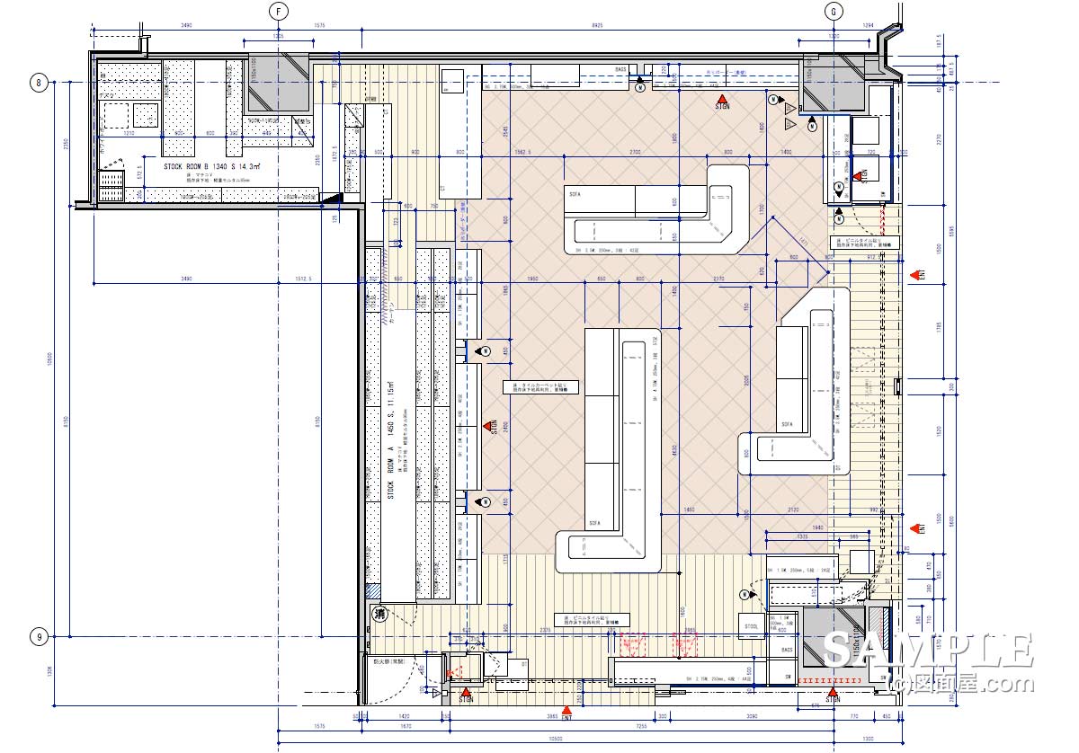
ゆったりとした空間の婦人靴売り場 【環境図_02】

  • 更新日:2026年1月29日
  • 公開日:2026年1月28日
  • レディースシューズ
はじめに! 今回は靴ショップの展開図を題材に、ファサード〜入口の核什器〜ストックまわりの細部まで追っていきます。 魅せ場の“派手さ”も店には要るけど、それを最後まで崩さず成立させるのは、納まり・建具・カーテン処理みたいな […]
続きを読む

ゆったりとした空間の婦人靴売り場 【環境図_01】

  • 公開日:2026年1月15日
  • レディースシューズ
  • レディース服飾関連
  • その他
はじめに 長年店舗設計に携わっていると、「派手さ」よりも「無理のなさ」が、最終的な仕上がりや使われ方を大きく左右することを実感します。 図面の段階で無理をしている案件ほど、現場で必ずどこかに歪みが出るものです。 今回の事 […]
続きを読む

サイト内検索

ブログランキング参加中

お問い合わせ

お問い合わせフォーム

ご質問やお問い合わせは、お問い合わせフォームよりお願いします。図面に関することでしたら、どんなこととでもお気軽にお問い合わせください。

作図のお手伝いします

作図関係のお手伝いします当ブログでは、図面作成や図面修正など作図関係のお手伝いをしています。

受注はWEBで簡単!詳しくはこちらをごらんください。

最近の投稿

  • ゆったりとした空間の婦人靴売り場 【環境図_02】
  • ゆったりとした空間の婦人靴売り場 【環境図_01】
  • ベーシックな店づくりが光る、正統派トラッドショップ《什器図_01》
  • ベーシックな店づくりが光る、正統派トラッドショップ《造作図_02》
  • ベーシックな店づくりが光る、正統派トラッドショップ《造作図_01》
  • ベーシックな店づくりが光る、正統派トラッドショップ《環境図_02》
  • ベーシックな店づくりが光る、正統派トラッドショップ《環境図_01》

鋼材表

カテゴリー

  • サービス
  • マテリアル
  • ショールーム
  • ユーティリティ
  • カルチャースクール
  • 婦人服
    • レディース001
    • レディースカジュアル002
    • レディース(フェミニン)003
    • レディースカジュアル004
    • レディース(エレガント)005
    • レディースカジュアル006
    • レディースカジュアル007
    • レディース(エレガント)009
    • レディースカジュアル010
    • レディース(セレクト)011
    • レディース(キャリア)012
    • レディースカジュアル013
    • レディース(キャリア)014
    • レディース(セレクト)016
    • レディース(キャリア)017
    • レディース(フォーマル)018
  • 紳士服
    • メンズ(トラッド)006
    • メンズ_001
    • メンズ_002
    • メンズ(カジュアル)003
    • メンズ004
    • メンズ(ビジネス)005
    • メンズ(アウトドア)007
    • メンズ(アウトドア)008
    • メンズ(スーツ)010
    • メンズ(カジュアル)011
    • メンズ(カジュアル)012
    • メンズ(アウトドア)013
    • メンズカジュアル014
    • メンズ(ビッグサイズ)015
    • メンズ(ビジネス)016
    • メンズ(ビジネス)017
    • メンズ(ビジネス)018
    • メンズ(ビジネス)019
    • メンズ(カジュアル)020
    • メンズ(カジュアル)021
    • メンズ(ビジネス)022
  • スポーツスタイル
    • スポーツ001
    • スポーツ002
  • ファミリー(アパレル)
    • ファミリー001
    • ファミリー002
    • ファミリー003
  • キッズ
    • キッズウェア001
    • キッズウェア002
  • 生活雑貨
    • トラベルショップ001
    • 家電(携帯電話)001
    • ステーショナリー001
    • ライフスタイルショップ001
    • 和食器001
    • メガネショップ001
    • メガネショップ002
  • レディース服飾関連
    • アクセサリー002
    • レディースシューズ
    • レディースハット_001
    • レディースバッグ001
    • レディースバッグ_008
    • アクセサリー001
    • 婦人雑貨003
    • 婦人雑貨012
    • 服飾雑貨セレクトショップ004
  • メンズ服飾関連
    • メンズ服飾雑貨002
    • 喫煙グッズ009
  • 飲食店
    • ダイニング004
    • 居酒屋001
    • 居酒屋002
    • 中華料理
    • ダイニング001
    • ダイニング002
    • ダイニング003
    • カフェ001
    • カフェ002
    • カフェ003
    • カフェ004
    • カフェ005
    • カフェ006
    • 和食(蕎麦屋)001
    • 和食(蕎麦屋)002
    • ラーメン001
  • 食品
    • リカーショップ
    • ベーカリー001
    • ベーカリー003
    • キャンディ002
  • ショップマニュアル
  • その他

アーカイブ

  1. 店舗設計 A to Z 〜内装設計の手引き〜 TOP
  2. レディース服飾関連
  3. レディースシューズ

最新記事

  • ゆったりとした空間の婦人靴売り場 【環境図_02】
  • ゆったりとした空間の婦人靴売り場 【環境図_01】
  • ベーシックな店づくりが光る、正統派トラッドショップ《什器図_01》
  • ベーシックな店づくりが光る、正統派トラッドショップ《造作図_01》
  • ベーシックな店づくりが光る、正統派トラッドショップ《造作図_02》
  • ベーシックな店づくりが光る、正統派トラッドショップ《環境図_01》

メタ情報

  • ログイン
  • 投稿フィード
  • コメントフィード
  • WordPress.org

内装用語集

CH:天井高
CL:天井ライン
CT:カウンター
DSP:ディスプレー
DL:ダウンライト
FB:フラットバー
FR:フィッティングルーム
FIX:はめ殺し
FL:フロアレベル
FL: 蛍光灯
HGR:ハンガーラック
SUS:ステンレス
SUS.HL:ステンレスヘアライン
LGS:軽量鉄骨
M:ミラー
PB:プラスターボード
SC:ショーケース
ST:ステージ
TA:テーブル
VP:ビジュアルプレゼンテーション
VMD:ビジュアルマーチャンダイジング

  • トップページ
  • プロフィール
  • 図面作成のお手伝いします
© 2019 店舗設計 A to Z 〜内装設計の手引き〜
  • シェア
  • TOPへ
  • ホーム