はじめに

長年店舗設計に携わっていると、「派手さ」よりも「無理のなさ」が、最終的な仕上がりや使われ方を大きく左右することを実感します。
図面の段階で無理をしている案件ほど、現場で必ずどこかに歪みが出るものです。
今回の事例でも、奇をてらった構成ではありませんが、実際の売り場でどう使われ、どう納まるかを図面屋の立場で一つひとつ確認しながら組み立てています。
寸法の取り方、納まりの順番、材料の選び方まで、現場で「考えなくていい図面」になることを意識しました。
現場で迷わない、施工で揉めない、そして使い続けられる。それは偶然ではなく、図面の時点でどれだけ先を読めているかで、ほぼ決まります。
こうした“当たり前”を積み重ねていくことが、図面屋としての仕事であり、この設計の背景になっています。
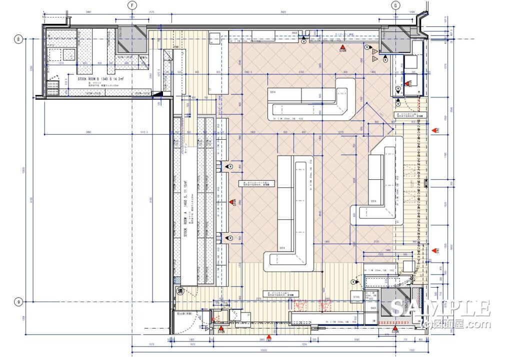
通路確保を意識した平面計画

本計画は約40坪のテナントで、売り場約35坪+ストックルーム約4坪と、同業態の中ではやや余裕のあるサイズ感となっています。そのため、什器を詰め込みすぎず、売り場全体に「余白」をしっかり持たせる構成を意識しました。
エンタランスは、図面下と図面右側に箇所。テナント位置については、申し分ない位置と考えます。
売り場中央には回遊性のある島什器を配置しつつも、通路幅は全体的に広めに確保しています。ただ歩けるだけでなく、立ち止まって商品を見たり、ゆっくり選んだりできることを前提にした通路計画です。
ベビーカーや複数人での来店でも、ストレスを感じにくい寸法を意識しています。
空間構成としては、視線が抜けやすく、圧迫感の出ないレイアウトを基本としています。什器高さも抑え気味とし、売り場全体が見渡せることで、初めて来店するお客様でも安心して回遊できる空間を目指しました。
内装はナチュラルカラーを基調とし、派手さよりも落ち着きと安心感を重視しています。
長時間滞在しても疲れにくく、「ゆっくり見て、自然に買い物ができる」売り場になるよう、全体のトーンを整えています。
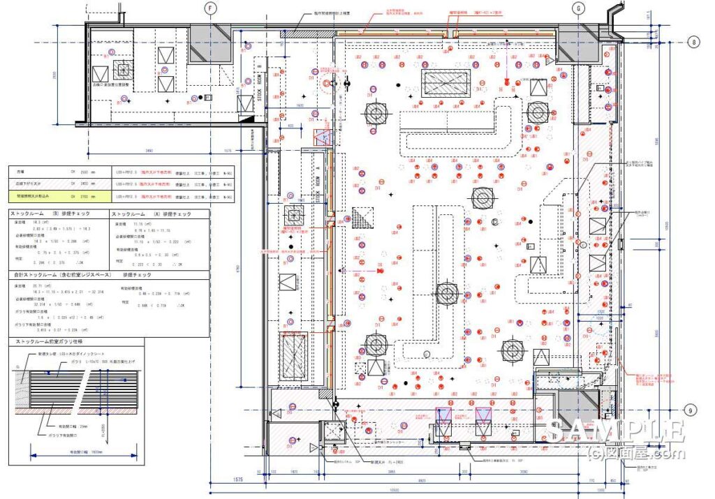
重点照明に力を入れた天井計画

本計画の天井計画では、いわゆる均一な基本照明は設けず、商品や売り場の見せ場に合わせた重点照明を中心に構成しています。
明るさをただ確保するのではなく、光の当て方によって空間にメリハリをつけることを意識した照明計画です。
売り場全体には、ダウンライトやスポットを細かく配置し、島什器や壁面什器ごとに適切な照度が得られるよう調整しています。
結果として、歩く場所と商品を見る場所の明暗が自然に分かれ、視線が商品に集まりやすい空間になっています。また、空調・換気・感知器など設備関連が多い中でも、照明器具の配置が雑然としないよう整理しています。
設備同士の干渉を避けつつ、照明のピッチやラインを揃えることで、天井面がうるさく見えないよう配慮しました。
器具点数は多いものの、全体としては整った印象になるようまとめており、意匠性と設備要件のバランスを取りながら、現実的に納まる配置を意識した天井伏せ図となっています。
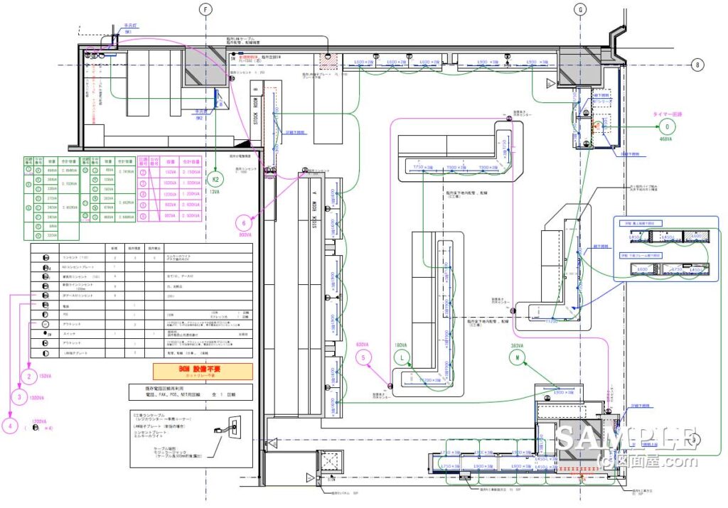
弱電配線図は描けなきゃ駄目!

弱電配線図は、特別に目新しいことを書く図面ではありません。むしろ、店舗設計においては「描けて当たり前」「理解していて当然」とされる図面です。
ですが、ここを曖昧にしたままでは、次の工程には絶対に進めません。
本図では、POS、電話、LAN、各種弱電機器の系統を整理し、売り場・バックヤードそれぞれで無理のない配線計画としています。
什器配置や動線を踏まえ、配線が交錯しないようルートを明確にしながら、現場で迷わない図面を意識しています。
弱電は、完成後に目立つものではありませんが、トラブルが起きると真っ先に問題になる部分でもあります。だからこそ、設計段階で「どこから引いて、どこに落とすのか」をきちんと描き切ることが重要です。
派手さはありませんが、この弱電配線図を理解し、描けるかどうかが設計者としての基礎体力になります。
店舗設計に携わる以上、ここは必ず押さえておきたい図面だと考えています。
まとめ
今回の一連の図面で共通しているのは、特別なことをしていない、という点です。平面、天井、弱電、いずれも店舗設計としては“当然”求められる内容であり、奇をてらった要素はありません。
ただし、その「当然」をきちんと描き切れているかどうかで、設計の質は大きく変わります。
空間の余白、通路幅、照明の当て方、設備の整理、弱電の配線。どれか一つでも理解が浅いまま進めてしまうと、後工程や現場で必ず無理が出ます。
設計者としてまず押さえておくべきなのは、派手な表現ではなく、前に進める図面を描けているかどうか。
今回の図面は、その土台となる部分を一つずつ丁寧に積み上げた事例だと思います。
是非、この事例を参考にして、理解出来たモノはご自分のモノとしてください。
デザインランキングに参加してます。応援お願い致します!
↓ ↓ ↓
デザインランキング






